Содержание
- 1 Особенности технической инвентаризации
- 2 Объекты технической инвентаризации
- 3 Государственная техническая инвентаризация
- 4 Документы для технической инвентаризации
- 5 Когда нужен Техпаспорт, а когда Техплан на квартиру?
- 6 Заключение
- 7 Техническая инвентаризация здания
- 8 Техническая инвентаризация: бюро, центр, инструкция, проведение, органы, закон
- 9 Техническая инвентаризация: бюро, центр, инструкция, проведение, органы, закон
- 10 Предприятия технической инвентаризации
- 11 Организация технической инвентаризации
- 12 Проведение технической инвентаризации
- 13 Техническая инвентаризация Москва
- 14 Техническая инвентаризация Санкт-Петербург
Особенности технической инвентаризации
Необходимость проведения технической инвентаризации обуславливается несколькими факторами: желание собственника объекта недвижимости провести проверку его имущества, требованием государственных органов (к примеру, при получении лицензий для определенных видов деятельности или прохождении проверок контролирующих структур), ввод объекта в эксплуатацию после завершения его строительства, реконструкции. Каждый из этих вариантов – основание для привлечения специалистов-инвентаризаторов для обмеров объекта.
Техническая инвентаризация может быть проведена в отношении здания, строения, помещения, недостроенного объекта недвижимости, сооружения, площадки, коммуникаций и др. В зависимости от вида объекта по результатам обмеров подготавливается определенный список документов: технический паспорт, поэтажные планы, справка ТЭП, справка о принадлежности объекта к объектам недвижимости и пр.
Объекты технической инвентаризации
Объектами, которые требуют проведения технической инвентаризации, являются единицы учета, с определенными характеристиками и юридическим статусом.
Объектом может выступать целый имущественный комплекс, либо при необходимости одна единица учета разбивается на несколько, о чем составляется сопроводительная документация. Как правило, при дроблении комплекса сооружений предполагается возведение стен или заборов в качестве разграничительной линии. Не допускается условное разграничение.
Помимо этого, проведение технической инвентаризации требуется при незавершенном строительстве и самострое с целью подтверждения законности постройки и бесхозных сооружений.
Инвентаризации подлежат также объекты внешнего благоустройства, то есть площадки, мосты, проезды и даже зеленые насаждения. Подпадают в эту категорию и объекты передающих устройств, электротранспорта, то есть канализации, нефтепроводы и прочие объекты.
Действующее законодательство предусматривает неразрывную связь между земельным участком, его целевым назначением и самим объектом, подлежащим инвентаризации.
Законодательством выделяется 3 вида инвентаризации недвижимого имущества:
- первичная;
- плановая;
- внеплановая.

Первичная проводится с целью постановки на учет недвижимого имущества, составления плана и паспорта. Данный вид работ предполагает точное определение месторасположения сооружения и тип правообладания.
Плановые работы проводятся с периодичностью в 5 лет, но не чаще чем 1 раз в 3 года. Инвентаризация может быть инициирована региональными властями.
Внеплановую или текущую техническую инвентаризацию инициируют сами собственники недвижимости через подачу соответствующего заявления в БТИ на платной основе. Такая инвентаризация может потребоваться после перепланировки, переоборудования или изменения других характеристик.
Бюро технической инвентаризации – это основное уполномоченное юридическое лицо, которое может проводить инвентаризацию.
У данного учреждения филиалы по всей стране, и в архивах этого лица хранятся все данные о жилом фонде страны.
Плановая государственная техническая инвентаризация проводится специальными унитарными или государственными учреждениями, которые уполномочены на данный вид работ Федеральным агентством субъектов. Сверку по земельным участкам проводит «Ростехинвентаризация», отделения которой находятся также по всей стране.
Техническая инвентаризация объектов недвижимости предполагает 2 этапа.
| Подготовительный этап | Рабочий этап |
| Ознакомление с уже имеющимися документами | Проведение замеров в натуре |
| Определение необходимого количества сотрудников для выполнения работ | Изготовление рабочих чертежей, схем и планов |
| Подготовка персонала, то есть ознакомление с требования техники безопасности | Составление описания и конструктивных особенностей объекта недвижимости |
| Заключение договора с заказчиком | Проверка и согласование выполненных работ с заказчиком |
В итоге, на каждый объект недвижимого имущества составляется отдельный технический паспорт. Органы БТИ формируют инвентарное дело с присвоением отдельного номера, реестрового и инвентарного.
К одной из составляющих правоустанавливающих документов на объект недвижимого имущества необходимо отнести и акт ввода в эксплуатацию, проектную документацию, если инвентаризация проводится после реконструкции.
На выполнение работ бюро технической инвентаризации отводится 1 месяц. Если конкретный объект недвижимого имущества имеет большие размеры, высотность и «запутанную» архитектуру, то срок может корректироваться сторонами в договоре.
- По итогу проведения технической инвентаризации объектов недвижимости составляется технический паспорт.
- В первом разделе паспорта описываются общие сведения о принадлежности объекта недвижимого имущества.
- Во втором разделе документа размещается экспликация и прописываются основания для владения землей, к примеру, свидетельство на право собственности или другие документы.
В третий раздел заносятся описания здания. В 1-ю графу таблицы заносится буквенное обозначение здания.
Во второй графе описывается назначение, то есть жилое или нежилое, пристройка. В остальные графы заносятся данные, полученные при измерениях.
В последнем разделе описывается техническое состояние, назначение и стоимость.
К паспорту прилагаются следующие документы:
- горизонтальные, поперечные и продольные планы, разрезы;
- ситуативный план территории, то есть с привязкой к конкретной местности;
- материалы полевых работ и абрисы.
Как и другое недвижимое имущества, все земли, которые не относятся к категории сельскохозяйственных, подлежат обязательной технической инвентаризации.

В ходе проведения работ уточняется месторасположение участка, состав земли и определяются качественные характеристики, площадь. После выполнения работ составляется кадастровый паспорт с описательной частью и ситуационным планом.
Инвентаризация земли требуется чаще всего при необходимости переоформления прав владения на участок.
Межевание земель – один из видов технической инвентаризации. Это комплексные работы, которые проводятся при необходимости восстановления и закрепления границ на местности.
Как правило, техническая инвентаризация объектов недвижимости обязательно проводится при получении нового земельного участка, как юридическими, так и физическими лицами.
Возможно, что ранее выданные правоустанавливающие документы были оформлены без закрепления границ на местности. Восстанавливать границы приходится и при возникновении споров между соседями.
Как и все виды проектно-изыскательных работ, имеют возможность проводить юридические и физические лица, получившие право на проведение такой деятельности через оформление лицензии.
Этапы проведения работ:
- анализ существующих документов;
- полевые обследования и составление технического проекта;
- согласование границ с собственником и смежниками;
- определение точной площади и составление чертежа границ;
- формирование межевого дела и передача в архив.
Кадастровый паспорт
В отличие от технического плана на объекты технической инвентаризации, кадастровый план подразумевает краткое изложение информации, которая располагается всего лишь на 2 листах. На первой странице кратко описывается объект, на 2-й – ситуативный план.

К объектам внешнего благоустройства относят:
- сооружения для сбора и вывоза бытовых и других отходов;
- насосные станции и прочие сооружения водоснабжения и канализации;
- внешнее освещение и рекламу;
- зеленые насаждения;
- сооружения систем инженерной защиты территории;
- бытовые помещения на территориях жилых застроек;
- малые архитектурные формы.
Техническая инвентаризация недвижимости в данном случае может быть первичной и текущей. Последняя проводится для уточнения и внесения изменений, которые произошли после проведения первичной процедуры инвентаризации.
Если инвентаризируемые объекты имеют единое административное наименование, но находятся на балансе разных государственных структур, то составляется все равно 1 паспорт, где отражается принадлежность отдельным пользователям земли. Стоимость и порядок проведения работ определяется департаментом благоустройства города или поселка.
Как и в других случаях, техническая инвентаризация состоит из установления площади объекта, границ, недвижимость классифицируется и наносится на схему. Затем описываются количественные и качественные характеристики, состояние элементов и степень износа.
Борьба с монополией
Технический учет и техническая инвентаризация ранее являлись прерогативой государственного бюро технической инвентаризации. Для устранения негативных последствий монополизма на сегодняшний день внедрена система аккредитации государственных предприятий.
Хотя если паспорт утрачен, то все же лучше обратится в БТИ, так как хранителями архивов все же являются эти органы.
Следует отметить, что не стоит пренебрегать процедурой изготовления технического паспорта и периодическим его обновлением. Без этого документа будет невозможно оформить права на недвижимое имущество, подарить его или продать. Для юридических лиц этот документ является основанием для начисления амортизационных отчислений и налогов.
Начальная (первичная) инвентаризация недвижимости выполняется непосредственно после завершения строительства объектов. Она включает в себя описание строения по главным признакам, а также отображает размещение здания на земельном наделе.
Также этот процесс охватывает общие параметры строения, экономические показатели, учет несовпадений между документацией на объект и его реальными характеристиками.
Начальная инвентаризация проводится за фиксированную плату, региональными БТИ, по месту размещения строения.
Стандартная (текущая) инвентаризация выполняется после капитального изменения планировки, переустройства, реконструкции здания, демонтажа его части или возведении дополнительных сооружений. Также данный вид инвентаризации обязателен к проведению при заключении сделок, подлежащих учету в госструктурах.
Каждые 5 лет проводится техническая проверка планового характера, с целью выявления изменений и расхождений.
Все выявленные замечания, прочие данные заносятся в паспорт и другую документацию, предусмотренную в БТИ.

Рассматриваемый процесс представляет собой подготовку, изготовление и составление паспорта объекта, который является конечным этапом проведения проверки.
Данные меры могут потребоваться в следующих случаях:
- При сдаче новых объектов;
- В случае капремонта строения;
- В период оформления регистрации и доказательства прав на недостроенные объекты;
- При проведении аналогичных действий с недвижимостью, которая появилась вследствие раздела, совмещения или долевого отторжения имущества.
Объекты, подлежащие обязательной технической инвентаризации:
- Строения, имеющие общественную и производственную направленность;
- Жилые многоэтажки;
- Общежития;
- Индивидуальные жилые дома;
- Гаражные строения, беседки, дачи и прочие хозяйственные постройки.
В ходе проведения рассматриваемого процесса проверке подлежат основные конструктивные элементы (состояние стен, фундамента, элементов перекрытия, крыши, отопления и вентиляционной системы). Подлежат внесению в опись все объекты некапитальной постройки (теплицы, летний душ, времянки и прочее).
- в выявлении их наличия и местоположения на земельном участке;
- в описании по основным признакам;
- в установлении внутренних и наружных размеров площадей и объемов;
- в определении экономических характеристик, в том числе инвентаризационной стоимости;
- в выявлении возможных противоречий между техническими документами и фактическим состоянием объектов.
Государственная техническая инвентаризация
Государственная техническая инвентаризация нормативно закреплена давно. В 1997 году Правительством РФ было разработано Постановление, которое на тот момент предусматривало процедуры проведения государственного технического учета жилищного фонда.
Как сказано в этом документе, учет объектов недвижимости должен был проводиться с целью определения местоположения, технического состояния, благоустройства, стоимости объекта. Эти требования соблюдались только до того момента, пока учет объектов недвижимости не возложили на Кадастровую палату Росреестра РФ, которая систематизировала всю информацию от БТИ в единую базу, рассчитало точную кадастровую стоимость недвижимости, произвело сбор всех данных об объектах на территории нашей страны.
Этот правильный и своевременный шаг Правительства позволил выявить многочисленные ошибки органов БТИ при проведении технической инвентаризации объектов до 2013 года. Сейчас сведения об объектах, которые были оформлены с ошибками, приводят в соответствие на основании обращений заявителей.
В этом же Постановлении Правительства установлено, что технический учет объектов недвижимости бывает нескольких видов: техническая инвентаризация, оценка недвижимости, обслуживание заявителей по предоставлению информации об объектах. Во время принятия этого акта, единственным органом, уполномоченным вести технический учет объектов было объявлено БТИ (районные, городские и пр.).

Первичная техническая инвентаризация – при появлении объекта недвижимости (строительстве, реконструкции). В этом случае все характеристики объекта должны быть измерены и внесены в технический паспорт, который является результатом выполнения работ. Также здесь подготавливается справка ТЭП (для получения разрешения на ввод объекта).
Плановая техническая инвентаризация предполагает проведение работ с определенной периодичностью. Обычно она проводится один раз в пять лет. Требование предоставления технического паспорта объекта, сделанного не позднее этого срока предъявляют контролирующие органы, отвечающие за выдачу и продление лицензий.
Внеплановая техническая инвентаризация проводится при наличии каких-либо изменений объекта недвижимости. К примеру, перепланировки объекта.
Документы для технической инвентаризации
Не каждому известно, как получают план БТИ для квартиры, либо дома, без ошибок. Поэтажный документ для любых видов сооружений заказывается в виде архивных копий, либо согласно новопроизведенным замерам.
Для заказа услуг, в БТИ необходимо предоставить в ряд документов:
- Паспорт, подтверждающий гражданство.
- В случае оформления третьим лицом, доверенность заверенная нотариусом.
- Документы, подтверждающие право собственности.
- Кадастровый паспорт при наличии.
- При оформлении техпаспорта на помещение нежилого назначения нужно гарантийное письмо.
- Если планируется переустройство здания, проект переделки.
Заказать план несложно. Для этого необходимо предоставить органам перечисленные выше бумаги и написать заявление по предоставленному образцу.
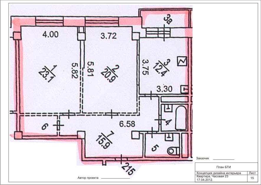
1. Поэтажные планы объекта. Готовятся на основании фактических обмеров инженерами.
poetazhnyiy-plan
2. Ведомость помещений и их площадей. Выгружается из поэтажных планов.
3. Технический паспорт. Совокупность всех данных об объекте недвижимости.
техпаспорт
Любая ревизия подтверждается документальным оформлением на бумаге. К инвентаризационным документам относятся:
- Инвентарные карточки. Они используются для отражения сведений о фактическом наличии недвижимого имущества и о его перемещении, если последнее было совершено. Карточки заполняются отдельно по каждому взятому объекту недвижимого имущества или на группу однородных объектов.
- Книги по инвентаризации и описи. Такие документы объединяют в себе все находящиеся в здании объекты. В них указываются характеристики, инвентарные номера, названия и иные показатели.
- Технические справки на объект обследования. Этот документ выдает бюро технической инвентаризации (БТИ). В нем раскрывается информация обо всех характеристиках каждого элемента недвижимого имущества.
- Документы на объекты, находящиеся в аренде: договор аренды и акт приема-передачи имущества.
Правила технической инвентаризации указывают, что законным требованием по отношению к зданиям и сооружениям считается паспортизация объекта. Получение паспорта требуется в момент ввода в эксплуатацию, при первичном осмотре и регистрации.
Собственник обращается в БТИ по месту нахождения недвижимости, где по запросу находит специалиста по техническому осмотру. По окончании работ инженер заносит технические характеристики в базу БТИ.
На основании этих данных выписывается паспорт с инженерными характеристиками строения.
Помимо этого, здание требуется обеспечить следующим:
- исполнительной документацией;
- актами предшествующих проверок;
- данными о всем комплексе объекта;
- справками о местоположении и границах здания;
- разрешением на проведение реконструкции, если она потребуется;
- сведения о внесенных корректировках.
Единых сроков проведения инвентаризации помещений не предусмотрено. Они варьируются в зависимости от масштабов объекта и объема работ.
Обычно выделяются средние сроки:
- составление инженерного плана помещения – не более 5 рабочих дней;
- обследование объекта недвижимости – от 1 до 30 дней;
- разработка техпаспорта – в течение 1 дня и более;
- постановка на реестровый учет или внесение изменений в учете кадастра – от 18 до 25 дней.
Когда нужен Техпаспорт, а когда Техплан на квартиру?
Технический паспорт квартиры представляет собой план квартиры (поэтажный план и экспликацию) с подробным ее описанием: общей и жилой площади, высоты потолков, описанием балкона/лоджии, кухни, типа санузла и т.п. Там же указывается первичная (инвентаризационная) оценка квартиры.
Подготовкой и выдачей Технических паспортов занимаются местные Бюро технической инвентаризации (БТИ). За выдачу Техпаспорта взимается плата.
Получить Техпаспорт на квартиру могут только собственники этой квартиры или их доверенные лица (по доверенности). Можно также заказать получение Техпаспорта специализированным коммерческим службам, которые берут все хлопоты по оформлению на себя, например – ЗДЕСЬ (СЕРВИСЫ).
Технический паспорт на квартиру составляется при первичной инвентаризации объекта, в т. ч. при постройке и сдаче нового многоквартирного дома. При этом, оформлением Техпаспорта на квартиру в новостройке занимается не Застройщик, а собственник квартиры.
Все последующие технические изменения квартиры (перепланировка, переоборудование) также должны быть согласованы с БТИ, и выполнены исключительно с разрешения БТИ. После чего эти изменения также вносятся в Техпаспорт – это будет уже вторичная инвентаризация.
Техпаспорт на квартиру содержит следующую информацию:
- Адрес и этаж квартиры;
- Технические характеристики дома (здания): год постройки и этажность дома, материал несущих конструкций и перекрытий, наличие водопровода и канализации, тип отопления, степень износа здания, год последнего капремонта (к слову, многоквартирные дома с 60-70% износа относятся уже к «ветхому жилью»);
- Технические характеристики квартиры: количество и описание всех жилых и нежилых помещений квартиры (комнаты, кухня, коридор, санузел, балкон/лоджия и т.п.), их площади и высота потолков;
- Инвентаризационный номер;
- Дата последнего технического обследования квартиры;
- Инвентаризационная стоимость квартиры;
- Отметка о внесении данных о квартире в Государственный Кадастр Недвижимости (ГКН) – наличие кадастрового номера.
Техпаспорт – это основной первичный документ, содержащий всю техническую информацию о квартире. Именно он является (точнее, являлся до 2013 года – об этом ниже) основой для составления Кадастрового паспорта на квартиру.
Ранее (до 01.03.2008 – года создание ГКН), Техпаспорт требовался для регистрационных действий в сделках с квартирами. Теперь для сделки купли-продажи квартиры используется Кадастровый паспорт – точнее, электронные данные кадастрового учета квартиры, которые содержатся в единой базе ЕГРН (Единого государственного реестра недвижимости).
Итого, вывод — когда нужен Техпаспорт, а когда Техплан, применительно к сделкам купли-продажи квартир:
- Если квартира стоит на кадастровом учете (проверить это можноздесь), то для регистрации сделки купли-продажи ни Техпаспорт, ни Техплан, ни Кадастровый паспорт не нужен (при регистрации перехода права, регистратор сам получает существующие сведения из кадастра);
Исключение – когда Техпаспорт требует участвующие в сделке банк-кредитор, страховщик, нотариус или органы опеки (для своих внутренних целей); - Если квартира НЕ стоит на кадастровом учете, то для совершения с ней сделки необходимо поставить ее на кадастровый учет, а для этого требуется заказать Технический план, для подготовки которого может понадобиться (не всегда) Техпаспорт.
Кроме того, Техплан квартиры надо будет заказать в случае устройства перепланировки квартиры (для внесения соответствующих изменений в кадастр), а также в случае обнаружения несоответствия реальных технических данных и данных, учтенных ранее (ошибки технического или кадастрового учета).
Срок действия Технического плана квартиры, так же как и срок действия Техпаспорта – не ограничен. Он считается действительным до тех пор, пока ему соответствует фактическое техническое состояние квартиры (расположение стен, перегородок, проемов, и т.п.).
Сопровождение сделки опытным юристом снижает риски ВСЕГДА (особенно для Покупателя квартиры).
Услуги профильных юристов по недвижимости можно найти ЗДЕСЬ.
Подробный алгоритм действий при покупке и продаже квартиры представлен в интерактивной карте ПОШАГОВОЙ ИНСТРУКЦИИ (откроется во всплывающем окне).
Паспорт технической инвентаризации, или технический паспорт объекта, — основной документ-результат проведенной работы. Он содержит все качественные и количественные характеристики недвижимости и отражает его эксплуатационные характеристики (количество помещений, их площадь, этажность здания, площадь жилой и нежилой части, подвалы, чердаки, техпомещения).
Подготовка этого документа производится с использованием специализированного (лицензионного) программного обеспечения.
Заключение
Технический учет и техническая инвентаризация выполняются в случае внесения определенных корректировок в отношении технических или качественных характеристик объектов капитального строительства.
Как показывает практика, добросовестное обследование выявляет и анализирует текущее состояние объекта недвижимого имущества. Наличие информации о фактических характеристиках здания или помещения позволит избежать судебных споров, а также своевременно выявить имеющиеся недостатки.
Техническая инвентаризация здания
Техническая инвентаризация здания – наиболее распространенный вид технической инвентаризации, при этом обследуется каждое помещение в нем: технические этажи, подвалы, лифтовые шахты, чердаки и пр.
При проведении такой работы необходимо полностью обследовать все здание и выявить в нем точную площадь всех помещений. Объектами технической инвентаризации также являются дороги, на них также подготавливаются технические паспорта и сведения заносятся в Кадастр недвижимости.
Техническая инвентаризация: бюро, центр, инструкция, проведение, органы, закон
Техническая инвентаризация – обследование объекта с целью составления документов, характеризующих его. Подобные мероприятия проводятся давно, изначально их целью был учет имущества государства.
В советские времена такую ревизию проводили только бюро технической инвентаризации (БТИ). Документы, созданные до 2013 года, хранятся в БТИ и доступны за определенную плату. С 2013 года государственную оценку проводит Кадастровая палата, предприятия могут привлекать любого подрядчика, имеющего соответствующую лицензию.
Понятие и цели
Понятие «техническая инвентаризация» включает в себе 3 составляющие:
- обмеры;
- составление описания с целью индивидуализировать объект, выделяя характеристики, отличающие его от других;
- описание состояния с целью определить изменения, возникшие в процессе эксплуатации.

Для проведения данного мероприятия существует целый ряд причин:
- желание владельца предприятия проверить состояние имущества;
- ввод в эксплуатацию нового (реконструированного) объекта;
- требования государственных органов к проведению проверок и предоставлению лицензий на отдельные виды деятельности.
По результатам проверки составляются различные документы: справки, планы, технические паспорта.
Нормативная база
- первой и второй частью Гражданского кодекса;
- Земельным, Градостроительным и Жилищным кодексом;
- Федеральными законами № 122, 1541-1, 78, 214, 221, 135;
- Постановлениями Правительства № 921, 1301, 615, 87;
- Приказами Госстроя, Минземстроя, Минэкономразвития;
Бюро технической инвентаризации, как говорилось ранее, с 2013 года было лишено любых преференций в области проведения технической инвентаризации. Если до того момента обращение к ним было безальтернативным, то сейчас каждый заказчик работ вправе на свое усмотрение выбрать исполнителя технической инвентаризации.
Органы БТИ, которые привыкли к своей исключительности, не шли на уступки клиентов – для выполнения работ требуется 100% предоплата, исполнение происходит очень длительный период (заказав документы клиенты не могут добиться их получения неделями и месяцами), переделывать некачественные работы зачастую отказываются.
Теперь у Вас есть выбор – обращаться в органы БТИ и следовать всем ИХ правилам выполнения работ и взаимодействия с клиентом, либо заказать техническую инвентаризацию в компании, которая превыше всего ценит положительный результат для клиента и дорожит своей деловой репутацией.
Принципы работ схожи с БТИ. В отличие от них, коммерческие структуры всегда нацелены на создание оптимально комфортных условий для клиента – Вы не попадете в очередь на прием к нужному специалисту, представитель ООО «Смарт Вэй» может выехать к Вам для презентации работ и подробно объяснить все принципы проведения технической инвентаризации, все условия договора корректируются учетом Ваших пожеланий и оформляются в соответствующей правовой форме юридическим отделом нашей компании.
Единственным случаем, когда обращение в БТИ неизбежно, является необходимость получения архивных сведений об объекте (до 2013 года). Остальную работу, наряду с этими организациями проводят частные компании.
Техническая инвентаризация: бюро, центр, инструкция, проведение, органы, закон
Центры технической инвентаризации сейчас – это компании, имеющие право выполнять работы вне зависимости от их организационно-правовой формы. Главное условие – аттестация кадастровых инженеров. Выбирая компанию по технической инвентаризации объектов следует обратить внимание на опыт определенной организации в сфере проведения работ, которые требуются именно Вам. Обычно такую информацию можно найти на сайте компании.

Также имеет значение наличие опыта работы с государственными структурами. К примеру, ООО «Смарт Вэй» имеет опыт работы с такими организациями, как Росимущество РФ, Дирекция по строительству, ДГИ и др.
Предприятия технической инвентаризации
Предприятия технической инвентаризации выполняют работы с различным категориям заказчиков. Обычно в зависимости от опыта работ и квалификации специалистов, такие организации подразделяются на те, которые работают с частными заказчиками (физлицами) и проводят инвентаризацию квартир, домов, гаражей, дач и пр.
Чем крупнее объект, тем сложнее порядок выполнения работ. ООО «Смарт Вэй» выполняет техническую инвентаризацию исключительно по крупным объектам недвижимости. Примерами наших работ являются гостиницы, торговые и развлекательные центры, театры, многоквартирные дома. Весомую долю объектов составляет государственная собственность.
Организация технической инвентаризации
Организация технической инвентаризации начинается с выбора компании, которая будет ее проводить на Вашем объекте. В зависимости от целей ее проведения следует осуществить консультации с представителями подрядной организации и правильно сформулировать конечный результат работ. Нужно помнить, что определяющим фактором будет являться не только предложенная цена, но и то, насколько данный исполнитель разбирается в проводимой работе.
В силу того, что организации, которые имеют обширный опыт в сфере кадастра, специализировались ранее на земельных участках (межевании), работы по технической инвентаризации для них могут стать сложным заданием, требующим дополнительного образования и получения информации. ООО «Смарт Вэй» специализируется на выполнении технической инвентаризации объектов исключительно с применением новейшей нормативной базы.
Наши специалисты постоянно совершенствуют свои знания в этой отрасли – посещают профессиональные семинары, консультируются с представителями Кадастровой палаты. Поэтому проведение технической инвентаризации объектов любой сложности не составляет больших трудностей для нас.
После выбора подрядчика на техинвентаризацию заказчик работ вправе проверять и контролировать процесс их производства, не вмешиваясь в непосредственные хозяйственные дела подрядной организации. Стоимость работ обычно складывается из нескольких факторов: площадь объекта недвижимости, состава документации (в том числе исходной), местоположения объекта и его вида. Сроки работ также следует согласовать в момент заключения контракта.
Проведение технической инвентаризации
1. Сбор исходной документации
В зависимости от типа проведения технической инвентаризации отличается и список необходимых документов: проектная документация в случае первичной инвентаризации (после окончания строительства или реконструкции) или старый технический или кадастровый паспорт объекта недвижимости.
2. Выезд на объект инженера-инвентаризатора.
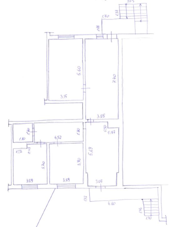
Инженер, используя исполнительные чертежи, выезжает на объект и производит обмеры. Обмеры производятся по внутренним правилам технической инвентаризации.
Пример:
Абрис:

Чертеж:
3. Изготовление документации
После получения необходимых данных составляются поэтажные планы объектов недвижимости, ведомости помещений и их площадей, а также технический паспорт объекта.
Техническая инвентаризация Москва
Компания Смарт Вэй оказывает услуги по технической инвентаризации в г. Москве и Московской области. Мы выполняем весь комплекс работ, в том числе кадастровые работы по результату инвентаризации, а также проектное обследование зданий и сооружений.
Цена на выполнение работ не зависит от расположения объекта недвижимости в Москве и Московской области. Но действуют крупные скидки на большой объем.
Минимальный объем для работы в г. Москве — от 3000 кв. м., для МО — от 5000 кв. м.
Чтобы узнать стоимость выполнения работ достаточно заказать коммерческое предложение по телефону или электронной почте.
Техническая инвентаризация Санкт-Петербург

Главный офис Смарт Вэй находится в г. Санкт-Петербург и в г. Москве, наши специалисты выполняют работы в городе и по всей ленинградской области.
Удаленность объекта не имеет значения, стоимость складывается из общего метра объекта недвижимости. Для крупных объектов предусмотрены скидки до 70%.
Узнать цены и сроки работ можно заказав коммерческое предложение. Для государственных организаций коммерческие предложения высылаются в короткие сроки — в течение дня.